| Halmstad
»Dessein öfwer hampnens reparation widh Halmstadh Anno 1648«. Den äldsta tillförlitliga kartan över staden, som här framträder sådan den övergick i svensk besittning. Mellan Norra bastionen (t. h. på tartan) och Södra bastionen sträcker sig befästningsgördeln som en halvcirkel runt staden med fyra smärre bastioner skjutande ut från vallen. Gatunätets anpassning till fästningsgördeln märkes framför allt i de öst-västliga, svagt divergerande gatorna.(Krigsarvivet, Stockholm. Skala 1:10000.)
Bildquelle: Lorenzen. Abb. 83.
|
|
|
| |
| Halmstad
Tomtkarta från år 1750 med försök till rekonstruktion av vissa detaljer i det medeltida gatunätet. Heldraga linjer beteckna tomtgänser eller medeltida grundmurar, stzreckade linjer tänkbara medeltidsgator. Det streckade partiet intill kyrkan utmärker den ungefärliga platsen för funna medeltida husgrunder. »Allmänningen«, utmärket med små streck, torde enligt docent Ljunggren ha legat söder om Kalentehuset (svart fyrkant). (K. Byggnadsstyrelsens Arkiv, Stockholm. Ungefärliga skala 1:5000.)
Bildquelle: Lorenzen. Abb. 84.
|
|
|
| |
| Halmstad från öster
Efter Suecia Antiqua et hodierna. Längst t. v. slottet, dock åtskilligt feltecknat. T. h. om kyrkan synes rådhusets åttkantiga torn, t. h. därom vid ån Österport. Denna var större är de övriga portana, som voro lika Norreport. Bakom de vingliknande utbyggena i portene nedersta våning funnos kanonkasematter till åmurens bestrykande. Längst t. h. Synes Norreport och Norrekatt.
Bildquelle: Lorenzen. Abb. 87. |
|
 |
| |
| Halmstad
»Prospect af Staden Halmstadh, huru han sig Presenterar emot Swenska Sijdan.« Norra delen. Den näst Österport viktigaste infartsleden genom Norreport skyddas av ett utanverk och av de flankerande Norrekatt och Klosterbastionen. Innanför den senare synes den gamla klosterbyggnaden, apterad till tyghus. Till höger därom den innanför muren belägna, långsträckta Västerkatt.(Upsala Universitetsbibliotek.)
Bildquelle: Lorenzen. Abb. 88.
|
|
|
| |
| Halmstad
»Prospect af Staden Halmstadh, huru han sig Presenterar emot Swenska Sijdan.« Södra delen. Utanverket vid Västerport tillkom först under svensk tid. Av bilden framgår tydligt, att slottet ej var avsett som ett led i försvarssystemet. Kyrktornet förstärktes däremot efter branden 1619, så att man kunde ha kanoner däruppe.
Bildquelle: Lorenzen. Abb. 89.
|
|
|
| |
|
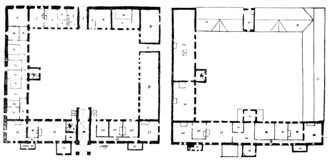
Halmstad Plan av slottets bägge våningar
1700-talets mitt.
Skala ca. 1:1000. Efter Gamla Halmstads Årsbok 1931.
Bildquelle: Lorenzen. Abb. 92.
|
|
|